Ganbara. 5 viviendas sociales en Ihabar.

Fecha y Lugar: 2025, Ihabar, Navarra.

Autores: MADE.V arquitectos – Daniel González García, Alvaro Moral García, Antonio Olavarrieta Acebo. con Koldo F. Gaztelu e Ignacio Olite.

 

GANBARA es una propuesta de rehabilitación que lee la casa tradicional navarra desde dentro, recuperando el “espacio colchón” —la antigua ganbara o desván— como dispositivo climático y social, y reescribiéndolo en clave contemporánea. En lugar de imponer un nuevo hito, el proyecto trabaja con la memoria material del edificio y su topografía para actualizar usos, accesos y confort sin renunciar al carácter patrimonial del conjunto.
La operación arquitectónica es precisa: entender la preexistencia como carcasa y “encajar” tres cajones desfasados en sección que comprimen una calle interior de triple altura. Esa calle —un vacío activo— funciona como gran espacio común, continuidad doméstica del espacio público, y se perfora en la bajocubierta mediante tres vacíos que conectan visual y climáticamente todo el volumen. La fachada norte hace explícita la intervención con tres piezas apiladas, retranqueadas, que revisitan la lógica de las celosías de madera de los caseríos (p. ej., Igartubeiti) sin competir con la masa estereotómica de los muros originales. Es un gesto mínimo, contemporáneo y deliberadamente no protagonista.
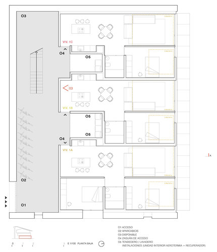
El pliego solicitaba cinco viviendas; la propuesta alcanza seis, mejorando la viabilidad y ampliando la oferta sin sacrificar calidad espacial. Dos accesos resuelven la accesibilidad universal y el desnivel del solar: uno urbano, a través de una grieta controlada en el muro; otro desde el jardín y el aparcamiento, que enlaza con un sistema de muros–bancal para salvar la topografía existente. La planta baja se abre como una plaza cubierta para actividades vecinales y culturales, diluyendo fronteras entre lo público y lo doméstico.
Tipológicamente se propone una matriz versátil —un “código de barras” de llenos y vacíos— que alterna bandas servidoras, espacios servidos y ámbitos indeterminados. Conviven viviendas en planta baja con jardín y dúplex cuyo acceso se sitúa en primera planta: en estos últimos, la zona de día se organiza en la planta de acceso y la de noche en bajocubierta. Se reserva, además, un “slack space” en cubierta —espacio de holgura según Jeremy Till— susceptible de colonización comunitaria o doméstica, reforzando la idea de ganbara como lugar de juego, encuentro y memoria.
La estrategia constructiva y energética se alinea con criterios ECCN y de ciclo de vida: estructura principal y tabiquería en CLT de proximidad, montaje en seco, tiempos controlados y mínima huella de carbono; la nueva pieza se apoya linealmente sobre muros de madera, con transición a muretes y zapatas de hormigón. Envolvente de altas prestaciones (fachada ventilada con gran espesor de aislamiento, trasdosados de cartón yeso con XPS y lana mineral) y restauración de cubierta con aislamiento por el exterior para controlar ganancias en verano. Los intersticios perimetrales actúan como gran cámara de aire: un amortiguador térmico que reduce demanda y concentra el esfuerzo energético en zonas habitadas.
Las instalaciones se individualizan por vivienda: aerotermia aire-agua, suelo radiante/refrescante y ventilación con recuperadores de alta eficiencia (~93%), priorizando confort acústico y térmico, bajo mantenimiento y monitorización telemática; se prevé apoyo fotovoltaico futuro mediante pérgolas en aparcamiento. El resultado es un patrimonio accesible, eficiente y económicamente asumible, donde cada decisión técnica refuerza la lectura patrimonial en lugar de competir con ella.
En síntesis, GANBARA no replica la casa rural: la cita. Rehabilita sin nostalgia, ensaya una calle interior como memoria activa, y deja huecos fértiles —espacios por venir— para que el habitar continúe escribiendo la historia de Escribarena con materiales honestos, energía contenida y una sociabilidad que late entre el establo perdido y la plaza cubierta recuperada.